`
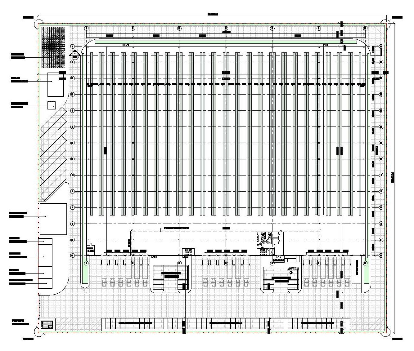
Class "A" Warehouse complex will consist of a warehouse area, an office part, and technical premises. The area of the warehouse will be 16,716 sq.m. The temperature range of the complex will vary within 22 - 24°C.
The land plot for the warehouse is located on the territory of the actively developing Free-Zone (ADAFZ) within the city of Abu Dhabi.
The complex is suitable for many spheres of commercial activity, including placement of food and non-food products.
The completion of the construction work is scheduled for Q1, 2025.





The Abu Dhabi Airport Free Zone (ADAFZ) is a project aimed at developing the emirate by increasing investment prospects for international companies in various commercial areas. Office buildings, factories, shops, recreation areas, warehouse pavilions and land plots for development are located on its territory.
The main advantage of the zone, which makes it an ideal platform for local and foreign companies, is its advantageous geographical location in close proximity to the airport and the city. Free-zone is actively developing and creates a prosperous and functional business environment.
About the company
Built over 2 billions м². commercial real estate, of which more than 100 thousand are office. This is exactly the kind of reliable and proven construction organization that MSM Logistic, LLC.
The construction of commercial real estate and its commissioning is far from the only direction of the company's activity. In addition to the construction and reconstruction of commercial real estate, we are also engaged in the construction of facilities for educational and cultural institutions, medicine and sports, parks, railway and air transport facilities, factory workshops, warehouses and much more at the request of the customer. All work is carried out in the shortest possible time and with the highest possible quality. At the same time, starting from the design of buildings and ending with acceptance tests of finished objects, the activities of MSM Logistic, LLC are completely transparent and controlled by the party that ordered the work. All contractual terms and financial obligations are fulfilled accurately, the customer's quality claims are corrected immediately.
CONSTRUCTION WORKS